Introducción
Después de siglos de represión de la comunidad indígena en Chiapas -choles, zoques, tojolabales, tzotziles, mames y tzeltales-, surgió en 1983 un pequeño grupo de indígenas y mestizos quienes, diez años más tarde, constituyeron el 1 de enero de 1994 un ejército que le declaró la guerra al gobierno de México para reivindicar sus derechos más elementales. En diciembre de ese mismo año se crearon los Municipios Autónomos Rebeldes Zapatistas (MAREZ), los cuales tardaron en concretarse. En 1999 se lanzó la Consulta Nacional por los Derechos y la Cultura Indígena que, en primer lugar, representa el esfuerzo organizativo del Ejército Zapatista de Liberación Nacional (EZLN) y, en segundo, un apoyo fundamental para la Ley sobre los Derechos y Culturas Indígenas (Muñoz Ramírez, 2003). En los años posteriores no hubo muchos resultados que beneficiaran a los habitantes, pero sí un interés del Gobierno Federal por la zona debido a su riqueza natural, por lo que creó estrategias para concentrar a la población en el menor número de localidades posibles.
El programa Ciudad Rural Sustentable (CRS)4 tuvo como antecedente los desastres naturales ocurridos en la región a finales del año 2007 y fue constituido legalmente el 7 de enero de 2009 por instrucciones del Gobierno Federal, en colaboración con el Gobierno del Estado de Chiapas, para combatir la dispersión poblacional -bajo la amenaza constante de desastres naturales, pérdidas materiales y vidas humanas-, promocionar el desarrollo regional e integrar a las familias de la región. El programa obtuvo grandes inversiones y fue objeto de una política de desarrollo urbano que dio respuesta cuantitativa más no cualitativa a las necesidades reales de la población.
El presente documento tiene el interés de evaluar dicho modelo urbano a partir de un estudio exploratorio del bienestar de la población que habita la CRS Santiago el Pinar en México. Busca conocer si la CRS ha otorgado bienestar a sus habitantes, mejoría en su habitabilidad y resuelto sus necesidades y si, en consecuencia, cumplió con el cometido de propiciar condiciones para el desarrollo económico sustentable y de actividades productivas propias de la región, elevando así la calidad de vida y los índices de desarrollo humano.
Marco conceptual
Calidad de vida
Desde sus orígenes, el concepto de calidad de vida ha estado acompañado de la preocupación por su medición. De acuerdo con Elvira Maycotte (2011: 234), esta
se aprecia de manera subjetiva, pero está lejos de ser un logro individual, pues involucra al entorno y a los otros. Elevar la calidad de un determinado grupo, entonces, involucra la participación ciudadana en beneficio de proyectos de desarrollo que no sólo responden a intereses individuales, sino que pueden estar articulados a intereses colectivos.
El análisis sobre el nivel de satisfacción de la calidad de vida de una sociedad debe iniciar por conocer las experiencias de los individuos, así como sus condiciones de existencia. Es decir, cómo han vivido en el pasado y en el presente, cuáles son sus necesidades y expectativas, así como su visión de futuro para poder transformar estas situaciones en las deseables.
La calidad de vida está integrada por tres elementos: el bienestar, la calidad ambiental y la identidad cultural, las cuales varían en concordancia con las características de cada región (Gráfica 1).
Bienestar
El bienestar ha sido muy estudiado por la filosofía y la economía. Una de las perspectivas desde la cual se ha abordado es la visión utilitarista, donde se le asocia a los conceptos de placer, felicidad o satisfacción de preferencias. En el otro extremo se encuentra una visión basada en los bienes, cuya posesión es evaluada como positiva. Para algunos autores
el concepto de bienestar debe separarse entre lo objetivo y lo subjetivo. [...] El primero incluye todos los elementos extrínsecos que coadyuvan con la satisfacción del individuo, el bienestar subjetivo segundo se refiere a los elementos internos de la persona. [...] El bienestar es un estado ideal al cual aspiran en general todos los seres humanos (García y Sales, 2011: 117).
El bienestar de la población requiere de una definición multidimensional, por ello se debe incentivar uno que propicie la satisfacción de la colectividad frente a condiciones materiales, físicas, espaciales y sociales, estimulando el bienestar individual y grupal.
Calidad ambiental
La calidad ambiental se apoya en dos disciplinas: la ecología y la antropología. Cada nación tiene potestad para su medición, de acuerdo con el Principio 2 de la Declaración de Río sobre el Medio Ambiente y el Desarrollo.
Los Estados tienen el derecho soberano de aprovechar sus propios recursos según sus propias políticas ambientales y de desarrollo, y la responsabilidad de velar por que las actividades realizadas dentro de su jurisdicción o bajo su control no causen daños al medio ambiente (ONU, 1992).
Identidad cultural
La identidad cultural hace referencia a las tradiciones, creencias, símbolos y comportamientos de un grupo social que permiten que un individuo tenga sentido de pertenencia al mismo. El Principio 22 de la Declaración de Río sobre el Medio Ambiente y el Desarrollo afirma que
las poblaciones indígenas y sus comunidades, así como otras comunidades locales, desempeñan un papel fundamental en la ordenación del medio ambiente y en el desarrollo debido a sus conocimientos y prácticas tradicionales. Los Estados deberían reconocer y apoyar debidamente su identidad, cultura e intereses y hacer posible su participación efectiva en el logro del desarrollo sostenible (ONU, 1992).
Modelos urbanos sustentables
Es indudable la falta de elementos que responden a los problemas y necesidades manifestadas en las ciudades, convirtiéndolas en consumidoras, al excluir de ellas su capacidad productora. Con esta intención se plantean los nuevos modelos de desarrollo urbano sustentable, es decir, la búsqueda de un equilibrio social, económico y ambiental como pauta para su crecimiento (Yory, 2004), sin embargo, esos modelos generan, en gran medida, nuevas formas de exclusión social, desigualdad de oportunidades, desequilibrio social y ambiental en las ciudades latinoamericanas. Pero el fenómeno no resulta exclusivo de las grandes urbes, por el contrario, situaciones semejantes impactan en el contexto rural, como es el caso analizado en este documento, por lo que se debe considerar un equilibrio en los tres elementos que constituyen la sustentabilidad: la sociedad, la economía y el medio ambiente, para asegurar que las propuestas planteadas sean realmente sustentables (Gráfica 2).
Ciudades sustentables
Una ciudad sustentable es aquella que logra solventar de manera equilibrada las necesidades de todos sus habitantes sin poner en peligro a las generaciones futuras (ONU, 1987). Esto implica que sus actividades no destruyan los recursos ni la diversidad de los ecosistemas en los cuales se sustenta, y la ineludible participación de todos sus ciudadanos para ejercer sus derechos y responsabilidades.
Hoy debemos pensarnos y configurar un ordenamiento ecológico de modo colectivo, tanto en los escenarios urbanos, como en los escenarios rurales. No podemos seguirnos pensando como rurales o urbanos, debemos pensarnos colectivamente como corresponsables del ordenamiento ecológico para generaciones presentes y futuras (Torres-Tovar, 2015: 9).
A partir del interés del Gobierno Federal por la planeación de ciudades sustentables, en alianza con el gobierno del Estado de Chiapas, nació el modelo de Ciudad Rural Sustentable (CRS), un replanteamiento de las políticas económicas, sociales y ambientales, y se implementó en 2009 con el aval del entonces Coordinador Residente del Sistema de Naciones Unidas en México, quien lo calificó como uno de los proyectos más innovadores y originales, porque creaba un nuevo lugar para la convivencia de las comunidades conformadas y daba solución al problema de dispersión-marginación de la población (Congreso del Estado de Chiapas, 2009). Para su creación se contó con una inversión de 470 millones de pesos (26.12 millones de dólares), añadidos a los recursos del gobierno Federal implementados, 75% de Fondo Regional (FONREGION), además de recursos estatales (Presidencia de la República, 2011). Según lo afirmado en ese entonces, la implementación de este modelo ubicó al país a la vanguardia en política social con la construcción de 115 viviendas, un hospital, una escuela, un mercado, una planta potabilizadora, una subestación eléctrica, un vivero, tres granjas avícolas y seis invernaderos.
Una CRS (Gráfica 3), según su estructura, tiene como finalidad combatir la dispersión de los asentamientos humanos rurales, adecuando la distribución de la población a las zonas potenciales del desarrollo regional de Chiapas, acercar los servicios básicos a un número mayor de personas que habitan las zonas alejadas, así como propiciar las condiciones que permitan el desarrollo económico sustentable y las actividades productivas propias de la región para elevar la calidad de vida y los índices de desarrollo humano (Congreso del Estado de Chiapas, 2009).
Santiago el Pinar, Chiapas
Territorio
El municipio Santiago el Pinar (Figura 1) se creó en 1999 como parte de la reestructuración municipal del Gobierno Federal mexicano, el cual, para poder apaciguar a los habitantes de la zona zapatista,5 puso en marcha una alternativa de planificación territorial y de vida social, de combate a la marginación y a la pobreza extrema. Lo anterior, en vínculo con los objetivos del desarrollo del milenio del PNUD, que dio origen a la CRS y que se concretó el 29 de marzo de 2011 (Gobierno del Estado de Chiapas, 2012c).
Vivienda tipo de la CRS Santiago el Pinar
El acceso a una vivienda adecuada es un derecho humano fundamental, por eso, el Gobierno lo planteó como un elemento prioritario en la CRS Santiago el Pinar, con el fin de mejorar las condiciones de habitabilidad, accesibilidad y disponibilidad de infraestructura, necesarias para un entorno de vida saludable -agua potable, calefacción, alumbrado, saneamiento, drenaje-.
La propuesta de vivienda (Figura 2) se proyectó con base en un sistema prefabricado. Una estructura de madera con cerramientos de páneles, compuestos por tableros de fibra-cemento, tratados con aislante térmico de lana mineral en los muros y de poliuretano en el techo, y construida sobre una cimentación apoyada en pilotes de concreto, hincados en una topografía accidentada, ausente de toda norma para el desplante de vivienda (Gobierno del Estado de Chiapas, 2012b).
Metodología
La metodología se fundamenta en una investigación de tipo exploratoria directa que aplica el Sistema Livingston a partir de entrevistas estructuradas y semiestructuradas a los residentes del lugar y a quienes participaron en el diseño de la CRS Santiago el Pinar, asistencia a reuniones comunitarias, encuestas y visitas domiciliarias registradas en dibujos, fotografías y videos con la finalidad de valorar aspectos como:
Seguridad jurídica de la tenencia.
Acceso a los bienes y servicios públicos.
Asequibilidad.
Habitabilidad.
Accesibilidad física.
Ubicación.
Adecuación cultural.
Libertad respecto del desahucio, los daños y perjuicios, y la destrucción.
Acceso a la información.
Participación.
Reasentamiento, resarcimiento, indemnización, no devolución y regreso.
Vida privada y seguridad.
Acceso a los recursos judiciales.
La encuesta, de una duración promedio de 40 minutos, se aplicó en diversas reuniones programadas para la participación de la población residente, así como en visitas domiciliarias. Aunque en ese momento existían 115 viviendas, 94 (82%) estaban abandonadas, por lo que la muestra constó de un total de 21 familias reubicadas (18%).
La investigación tuvo en cuenta las variables de calidad de vida y las ordenó en sus tres dimensiones: bienestar, psicosocial y socio-política. Para la primera, los indicadores revisados fueron sanidad, vivienda y equipamiento, para la segunda, la relación comunitaria y el tiempo libre, y para la tercera, la participación social y la seguridad.
Para la elaboración de la base de datos se recurrió al programa Microsoft Excel 2011, versión 14.1.0 para Mac y en el análisis estadístico de las variables se utilizó el programa STATA versión 9. Lo anterior se complementó con una revisión documental que permitió definir las problemáticas existentes en la zona y dar principio a las propuestas de intervención.
Resultados
Social
La información proporcionada a la población de parte del gobierno se relacionó únicamente con la orden gubernamental de reubicación. La consulta y la participación de la población para la aprobación del proyecto no fue realizada y, en consecuencia, su cotidianeidad cambió completamente.
Durante la investigación se observó lo siguiente sobre los jefes de familia:
El 83% vive en unión libre. Son parejas jóvenes, cuya situación se relaciona con una etapa incremental del desarrollo familiar.
El 90% no tiene estudios y sólo el 7% cuenta con educación básica (primaria), lo que genera dificultades para la obtención de oportunidades que incentiven la movilidad social o mejoras en su bienestar.
El 80% realiza actividades agrícolas de temporada (el cultivo principal es el café), obteniendo ingresos económicos únicamente durante este periodo. Dicha situación no garantiza su estabilidad económica, dejándolos varios meses sin una retribución que asegure su subsistencia.
Aunque el proyecto contemplaba la tenencia de un predio unifamiliar de 300 m2 con la posibilidad de patio para el autoconsumo, no se llevó a cabo y la ausencia de un espacio para realizar actividades de agricultura, como una posibilidad para la subsistencia, fue una deficiencia en la ejecución del proyecto. También lo fue no incluir espacios apropiados que fomentaran la convivencia de los miembros de la comunidad, así como los dedicados al descanso y el esparcimiento.
El conjunto habitacional careció de los servicios básicos y fue ubicado a una distancia considerable de las tierras de cultivo, ocasionando muchos problemas a los habitantes que, por ejemplo, tuvieron que caminar seis horas hasta el arroyo más cercano para aprovisionarse de agua. Esa distancia, además, cortó de raíz el vínculo del campesino con su valioso recurso natural y lo llevó a un intento de reconversión productiva.
La falta de capacitación para la negociación de acceso dentro del mercado de los productos que se pretendía que realizaran en el sitio, así como su comercialización, no cerró el círculo virtuoso que se pretendía desarrollar en la localidad y su creación fue poco viable, culminando en la desaparición del proyecto.
Como se ve, la vida en la ciudad rural transformó el espacio, el tiempo, los modos de producción, la reproducción cultural, la convivencia social, la relación de la comunidad con la naturaleza y, sin duda, su identidad.
Sanidad
A pesar de que el proyecto CRS mencionaba al Centro de Salud como base de una propuesta integral, este no cumplió con su cometido porque permanece cerrado la mayor parte del tiempo, tiene dificultades con el abastecimiento regular de las medicinas y no está equipado con los servicios mínimos necesarios, no tiene electricidad, ni agua potable y, actualmente, no cuenta con personal suficiente para su funcionamiento. Por otro lado, la clínica más cercana se encuentra a 15 minutos en autobús y el costo del viaje redondo era de 60 pesos en el año 2012 (Velázquez, 2012).
Los jefes de familia encuestados pueden caracterizarse de la siguiente manera con relación a temas de sanidad:
El 73% considera tener un estado de salud bueno, sin embargo, las carencias económicas y las condiciones inadecuadas de la vivienda propician las enfermedades respiratorias y estomacales, la anemia, las infecciones de las vías urinarias, las derivadas del embarazo, entre otras.
El 70% no realiza actividades deportivo recreativas, algunos por no disponer de tiempo y otros por falta de interés. Esto revela la falta de atención a la prevención de las enfermedades.
Vivienda
La propuesta implementada por el gobierno no tomó en cuenta las características de los habitantes de la vivienda y, por lo tanto, no satisfizo sus necesidades.
La mala planeación del proyecto va desde la apertura de la puerta, hasta la disposición final del mobiliario con relación a las actividades y diarias. La falta de áreas de guardado y la cocina, desvinculada como elemento de relación social, dejaron ver la ausencia cultural de la propuesta, carente de un espacio de aprendizaje de valores y recursos para la vida en sociedad, en armonía con su forma de vivir y con el número de habitantes por vivienda.
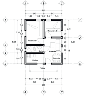
De otra parte, la mala calidad de los materiales de la vivienda entregada por el proyecto y su poca o nula adaptación climática, el planteamiento sin sentido de la orientación o posición de las viviendas, y la falta de ventilación, al igual que la ausencia de un espacio para el secado de café, la cría de animales domésticos o el huerto para el autoconsumo -desde su topografía- no les permitió a sus habitantes realizar las actividades cotidianas a las que estaban acostumbrados. Esto no favoreció un verdadero disfrute de las viviendas y su aceptación, en función del bienestar de las personas (Figura 3).

Fuente: elaboración propia.
Figura 3 Planta arquitectónica de la vivienda tipo de la CRS Santiago el Pinar
El Instituto de Población y Ciudades Rurales estimó que el promedio de integrantes por familia en la cabecera municipal de Santiago el Pinar era de 6.5 miembros en 2012 (Gobierno del Estado de Chiapas, 2012a). La información proporcionada por los jefes de familia jóvenes (entre 20 y 40 años), correspondientes al 63% del total de la población encuestada, confirmó que existía una propensión hacia el incremento del número de habitantes en el conjunto.
La vivienda otorgada por el gobierno fue de 30 m2. Tiene dos habitaciones de 5.02 m2 cada una (2.28 m x 2.2 m), la estancia-comedor, cocina y baño, lo que supone una escasez de espacio a su interior. En el mejor de los casos, una de las dos habitaciones la ocupa el matrimonio y la otra, un hijo único. Esto quiere decir que las familias que la habitan debían tener un máximo tres integrantes, sin embargo, los encuestado aseguraron que en su vivienda anterior convivían hasta 13 personas, como se vio en el párrafo anterior, porque las familias son multigeneracionales o extensas, en otras palabras, padres, hijos, nietos, tíos y primos habitan en el mismo predio, compartían las tareas del hogar, las comidas y espacios como el baño, el temascal, la cocina y el área de tendido, favoreciendo la economía familiar, el desarrollo integral de sus miembros y la cohesión social, así como la transmisión de valores, hábitos y costumbres.
La vivienda fue diseñada con una cocineta de 1 m x 2.5 m con acometidas para instalar una estufa y un fregadero, dejando de lado el anafre, elemento esencial para el desarrollo de sus actividades tradicionales. No contaba con servicio de gas y sus habitantes tampoco querían tenerlo porque, como exclamaba una vecina, "ahora nos van a obligar a pagar el gas" (Velázquez, 2012). Siguiendo la tradición, apegados al significado cultural y espiritual, y como respuesta económica, los habitantes han construido una cocina colectiva al aire libre, la cual reafirma la unión de una familia extensa.
Por otro lado, el uso de electrodomésticos no era viable, ya que las familias no contaban con los recursos económicos suficientes para el pago de los servicios, además, la cocina es un espacio productivo en el interior y el exterior de la vivienda, por lo que se puede asegurar que lo diseñado no logra satisfacer las necesidades de sus habitantes.
Equipamientos
El modelo de desarrollo que presenta la CRS impuso un sistema consumista, en el cual las personas eran dependientes del mercado, pues el planteamiento parcelario no permitía la autoproducción y, sin dinero, no se come (SIPAZ, 2012). Tal situación ha generado el regreso de muchos de sus habitantes a sus antiguas residencia, donde realizan las actividades agrícolas y ganaderas a las que están acostumbrados. Aun, cuando tampoco tienen los servicios básicos, están cerca de sus tierras y no tienen gastos extras de transporte.
Pero el regreso a las localidades dispersas ha causado un impacto negativo, pues la población queda marginada y reduce sus vínculos comunitarios. La ausencia de trabajo colaborativo implica no compartir experiencias con los demás, no conocerse y no crear ese vínculo de inclusión que puede desarrollarse con este tipo de trabajo colectivo que, además, facilitaría la producción y la comercialización (clusters comerciales) de los bienes obtenidos, ofreciéndoles nuevas alternativas de subsistencia. Así, se puede afirmar que estos proyectos productivos, más que mejorar su calidad de vida, son mecanismos excluyentes que fortalecen las prácticas de un sistema que resulta ajeno a la vida cotidiana de la población (reestructuración productiva) y no considera el entorno natural de estas localidades.
La CRS debería ofrecer facilidades para un empleo digno y bien remunerado, acorde con la actividad económico productiva de la comunidad y con base en sus características sociales, culturales, políticas y económicas, así como dar respuestas desde el punto de vista de los derechos fundamentales de los habitantes: educación, salud, alimentación, trabajo, vivienda, entre otros, afines a su cosmovisión y conocimientos, para fortalecer sus valores culturales.
Resumen de resultados e interpretación
Los datos examinados dan cuenta del bajo nivel de satisfacción del bienestar (Gráfica 4). Los indicadores de sanidad, vivienda y equipamiento se ubican en un nivel medio, la cohesión social, la seguridad y el tiempo libre están en medio bajo, mientras que la participación tiene la mínima calificación. Se considera que, a mayor tiempo libre, mayor es la oportunidad para la participación social, sin embargo, el poco tiempo libre que tienen los habitantes de la CRS lo ocupan en recorrer largas distancias para trabajar sus cultivos, lo que afecta de forma directa su capacidad para establecerse como una comunidad y limita toda posibilidad de participación.
Dado que el programa planteaba un enfoque integral, debió dar una mayor importancia a la consolidación de actividades laborales para la población, y sistemas de reconversión productiva que beneficiaran verdaderamente a sus habitantes, ofreciéndoles seguridad económica.
La política social focalizó los programas sociales en la atención a los rezagos y necesidades de la población bajo un supuesto marco de sustentabilidad, dando respuesta en materia de salud, vivienda, educación, empleo y servicios para mejorar su calidad de vida (Gobierno del Estado de Chiapas, 2010b). Sin embargo, la estrategia de ingreso al programa, ni los requerimientos propios de la comunidad fueron revisados en función de satisfacer las necesidades, por eso, los apoyos otorgados no necesariamente coincidieron con las realidades y costumbres de sus beneficiarios.
El diseño de la vivienda no tuvo un acercamiento directo con la comunidad para conocer sus requerimientos, ni se basó en un análisis de sitio que facilitara las condiciones físicas del asentamiento, en consecuencia, el modelo de vivienda no cumplió con las necesidades reales de los habitantes.
El entorno, desde la contextualización del sitio y relacionado con el sistema constructivo implementado, muestra que las extensiones parcelarias deberían ser de dimensiones diferentes, basando la afirmación en las características específicas de sus habitantes, su contexto social y productivo. El proyecto no fomentó a la convivencia y negó los espacios para el descanso y el esparcimiento. Lo anterior lleva a plantear que la solución arquitectónica debe ser acorde con las necesidades de los habitantes y diseñarse con las dimensiones adecuadas para realizar cada una de las actividades propias de la comunidad (Figura 4).

Fuente: Fotografía de los autores.
Figura 4 Vivienda anterior ubicada en localidad cercana a la cabecera Santiago el Pinar
La imposición de estos modelos de vivienda afectó la identidad cultural porque forzó cambios en los usos, costumbres y formas de vida. Las instalaciones dañaron el entorno por los materiales contaminantes de las construcciones y los desechos no previstos que generó la obra, perjudicando la calidad ambiental en conjunto y, en consecuencia, la calidad de vida (Figura 5).
Referente a la infraestructura, la política instrumentada para brindar servicios de calidad desde la habitabilidad integral nunca se llevó a la práctica. Al carecer de recursos económicos propios, el Centro de Salud no cumplió con las exigencias mínimas para brindar atención médica, por lo tanto, el beneficio fue nulo para la sociedad de Santiago el Pinar. Se rescata la asistencia médica de carácter preventivo que los funcionarios del mismo realizan en los hogares: vacunación, limpieza dental, cuidado del embarazo, revisión del niño sano. Pero no cuentan con los recursos para atender las patologías complejas, por lo que los habitantes se ven obligados a desplazarse, complicando la situación económica de las familias.
Conclusiones
El análisis da muestra de que la calidad de vida del modelo de CRS en Santiago el Pinar es deficiente. Las autoridades y desarrolladores, en conjunto con la población, tienen el desafío de retroalimentar la política y sus resultados para su mejora. La visión de los habitantes debe ser prioritaria para la satisfacción de todos sus derechos, a partir de procesos informados de consulta, participación, control y evaluación.
A pesar de la existencia de una política pública para la creación de CRS, lejos de ofrecer una mejoría en la calidad de vida de sus habitantes, ha atentado contra la identidad cultural, sin consideración a sus tradiciones, usos y costumbres. Ha favorecido el desarraigo, la violencia y la destrucción del campo, y la separación o alejamiento del campesino de su tierra con consecuencias importantes sobre su seguridad alimentaria, su libre determinación y su integración social, porque no cumple con sus necesidades básicas, no responde correctamente a la demanda social, ni involucra la participación de los habitantes.
La mayoría de las nuevas viviendas que conforman la CRS se encuentran deshabitadas y se les ha dado otros usos -como bodegas, por ejemplo-, porque fueron planeadas ignorando sus cimientos simbólicos y culturales, lo que lleva a la pérdida de las tradiciones y de la autonomía, rompe lazos comunitarios e impide la satisfacción habitacional.
Los problemas de las viviendas son evidentes, dadas las deficiencias en sus condiciones de habitabilidad interna y externa. La ausencia de espacios públicos colectivos, las graves fallas de los equipamientos construidos sin normas mínimas básicas de calidad y la ausencia de recursos para su mantenimiento dieron como resultado el deterioro del lugar, y el abandono de las CRS por parte de los habitantes. La lejanía entre la CRS y las zonas de labor agrícola ha hecho que se pierda cualquier atributo espacial que posibilite condiciones para una habitabilidad integral.
La investigación permitió demostrar que el modelo de la CRS no mejoró las condiciones de habitabilidad, tampoco reconstituyó el tejido social, sus procesos organizativos, ni su entorno. Si bien es cierto que "la ciudad planificada puede ser entendida a partir de sus componentes que son los tejidos residenciales y productivos" (Sanabria, 2017:69), no aplica el mismo criterio para una CRS.
Finalmente, nuestra intención es aportar elementos de un método que reconoce a la población como prioridad de su propuesta y pretende garantizar la inclusión social en las políticas de desarrollo, aspectos aún ausentes en el modelo de producción.
Recomendaciones
Las dimensiones de la calidad de vida: ambiental, psicosocial, sociopolítica y bienestar deben aplicarse de manera integral en proyectos de esta índole, garantizando su crecimiento y tomando en cuenta para su desarrollo los elementos históricos y socioculturales de los habitantes, así como sus necesidades, sus aspiraciones, su manera de ver el mundo y la lógica del buen vivir que tiene cada comunidad.
El desarrollo de propuestas debe ir más allá del planteamiento de la vivienda como objeto o mercancía, que sólo intenta dar paliativos cuantitativos a las problemáticas complejas. Deben estar vinculadas a una integración verdadera, en la que la cohesión social, la habitabilidad interna y externa de la vivienda, los servicios, el empleo, la salud, los componentes biofísicos, multigeneracionales, la gobernanza y la seguridad permitan un funcionamiento sistémico para ofrecer un bienestar real.
Para que un proyecto de esta naturaleza funcione, las propuestas deben surgir de un diálogo de saberes entre los diversos actores, que incluyan no solo la planeación, sino también la implementación bajo mecanismos acordes a sus necesidades y a las características sociofísicas, en armonía con el entorno y con estricto respeto por sus habitantes.
Un pensamiento ambiental emergente en América Latina construido sobre las luchas y los conocimientos de los grupos étnicos y subalternos desde los cuales se puedan imaginar otras formas de ser, con una multiplicidad de seres vivos y no-vivos, humanos y no humanos, podría articular un pensamiento sobre la naturaleza/ urbanismo que permita la reconstrucción de mundos locales y regionales sustentables (Contreras, 2017:33).
Por esta razón se requiere considerar la aplicación de un modelo de desarrollo que se construya a partir de la justicia y la equidad social.




















